C. R. Jakobsoni 39_ Small house in Viljandi
2024
Viljandi, Estonia
Freelance work
Collaboration with Rebecca Peets
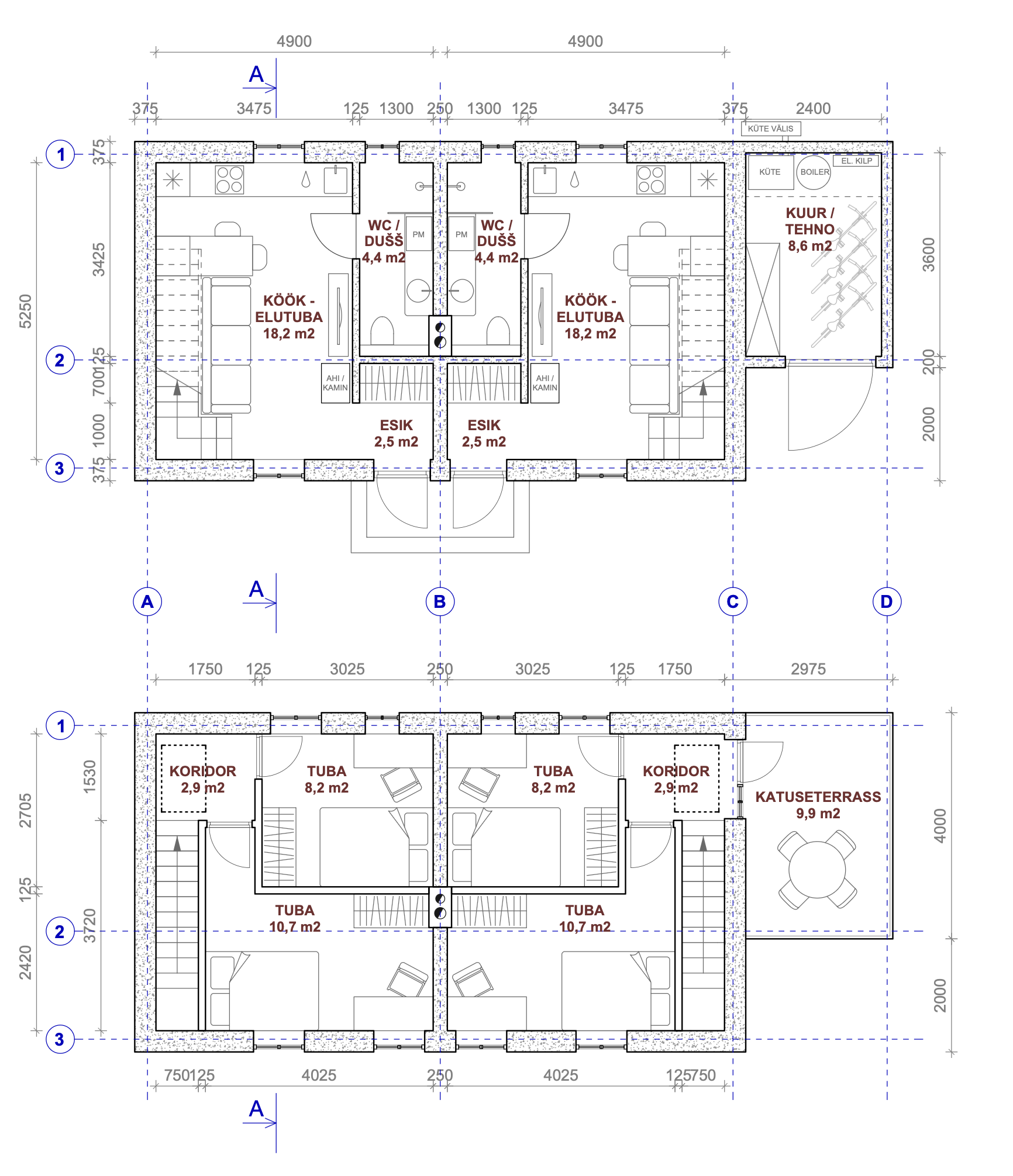
I designed a small two-apartment house in the center of Viljandi, within the heritage protection zone. Modest and respectful of its surroundings, the building is carefully integrated into the historic fabric of the old town. It is positioned on the footprint of a former outbuilding along C. R. Jakobson Street, with its layout considering privacy between the two units, the surrounding greenery, and optimal orientation to the cardinal directions.
Architecturally, the house has a contemporary yet understated character, with a single-pitch roof and vertical natural wood cladding that harmonize with the neighboring buildings. Clean lines, dark-framed windows, and balanced proportions allow the design to blend naturally into the streetscape, while the compact two-story, three-room layouts create a functional and human-scaled living environment.




