Hotel in Kalarand

2nd year project
2020
Tallinn, Estonia
Collaborators: Miko Vahane, Paula Lorence, Hanna Paaver

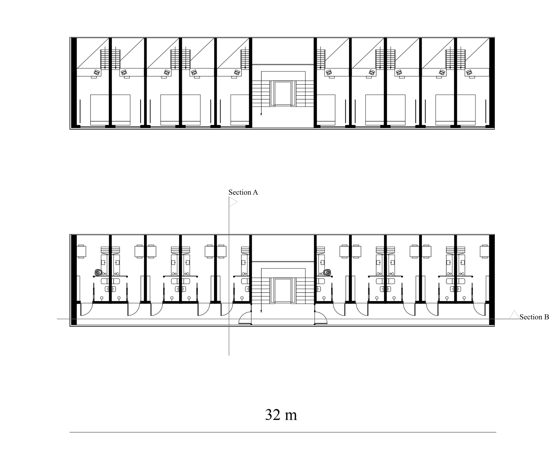
Taking today’s world into consideration we created a hotel where guests can have minimal human contact and stay for a few days, few weeks, a month or even a year, whatever is necessary. The hotel is located in Kalarand and has a wonderful view. To provide each room with a gorgeous view to the sea from massive windows, we raised the building to peek over the apartment building in the backyard. This means that every room has its own sea view.

We abandoned the typical idea that a hotel must be big and extravagant with people serving you at every hour of the day. Instead we’re taking a more sustainable approach with minimal size rooms, no traditional services (ie reception, room service, daily cleaning service) and moving all common areas to the outside. This means that the interior space is carefully planned for maximum usability while still being comfortable and open.